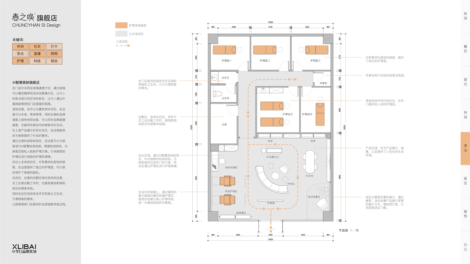
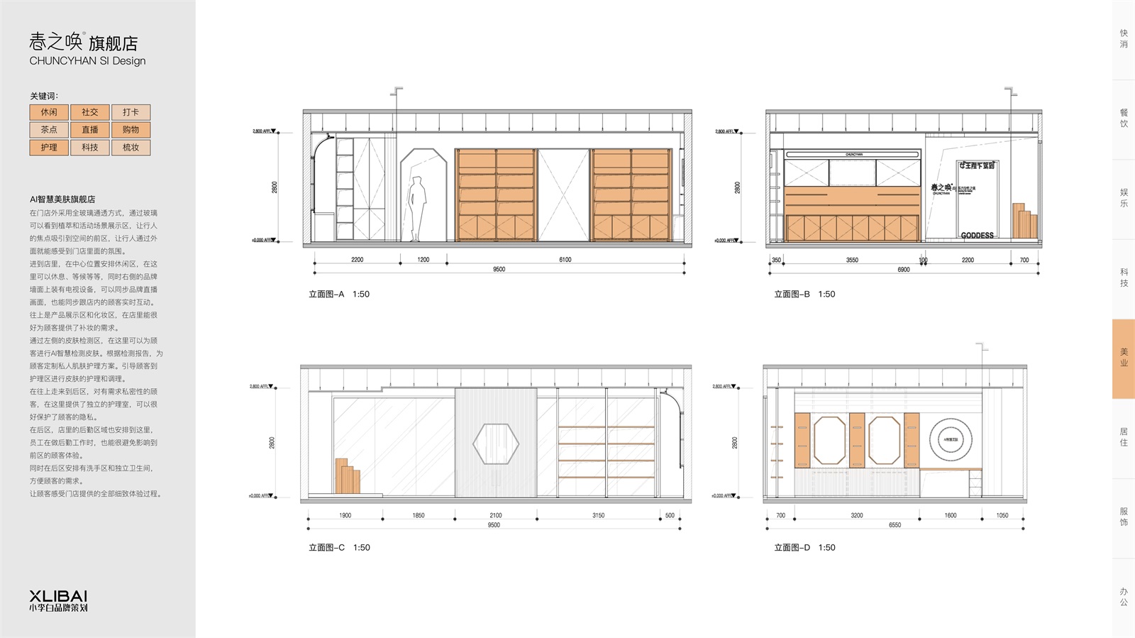
客户名称:春之唤护肤品牌空间设计
案例类别:空间导视
服务内容:空间设计、体验店设计、护肤品空间设计、医美空间设计
34141
探索东方美学、创造智慧美肤、春之唤倡导科技改变肌肤
唤醒东方女性之美、坚守着合适的、合理的、科学的、有用的品牌理念
用AI智慧、科技植萃、第25小时空间
与4000万粉丝一起,为唤醒东方女性4美而终生奋斗
2021 中国 春之唤
客户名称:春之唤护肤品牌空间设计
案例类别:空间导视
服务内容:空间设计、体验店设计、护肤品空间设计、医美空间设计
34141











上一篇: 空间 | 伊人王后肌肤修复空间设计