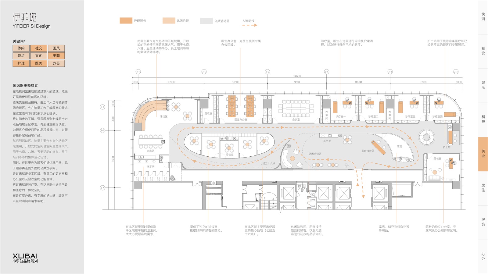
客户名称:伊菲迩轻医美空间设计
案例类别:空间导视
服务内容:空间设计、商业空间、医美空间设计、连锁店设计
41154
市场扩张战略:
伊菲迩要在3年内于全国拓展4000家医美连锁门店;
品牌发展战略:
伊菲迩要将自身打造为可传承百年的品牌,
要带领中华女性走向形象/气质/健康/家庭/事业五美平衡的高度,
为中国医美崛起而奋斗,为女性力量崛起而奋斗;
人群圈定战略
B端选择我们的原因:不仅为赚钱而来,而是真正被品牌的战略高度以及核心文化“五美平衡”给吸引而来,真正达成认知共识、灵魂共契;
C端选择我们的原因:7线56点之核心产品真正能满足她们对美丽的追求,五美平衡之文化及一系列会员活动真正可帮助她们走向人生与美的另一高度。
客户名称:伊菲迩轻医美空间设计
案例类别:空间导视
服务内容:空间设计、商业空间、医美空间设计、连锁店设计
41154



























上一篇: 空间 | 春之唤护肤品牌空间设计